近日,浦发集团合庆镇PDP0-0602单元54-02地块普通商品房项目设计方案公示。
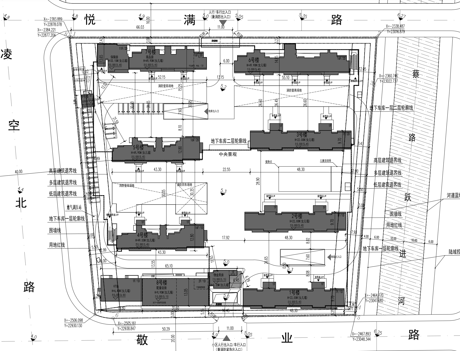
根据规划公示,地块东至54-03地块,南至敬业路,西至54-01地块,北至悦满路,为三类住宅组团用地,规划用地面积18122.30 平方米,总建筑面积56999. 03平方米。
其中地上建筑面积36693.98平方米,地下建筑面积20305.05平方米,计容建筑面积36244.60 平方米。
本项目新建7栋住宅和2栋配套。3栋7层住宅沿东侧河道布置,4栋16层高层住宅沿西侧凌空北路与北侧悦满路布置。

其中1栋位于地块西北角的高层为11层的保障性公租房与16层商品房组合,1栋2层的配套沿敬业路沿街设置;同时建设门卫、配电站、垃圾房以及地下车库等附属设施。
去年10月三批次第二轮土拍中,浦发集团以79374万元底价竞得该地块,成交楼面价21900元/㎡,房地联动价46000元/㎡。
合庆板块内当前可售新盘稀缺,南侧相邻的川沙板块内,东岸观邸·云尚丹霞、浦发东望均有房源在售,与本项目相距1.5公里左右。
东岸观邸·云尚丹霞累计开盘三次,首批次488套,认购率38%;二批次84套,认购率117%;三批次68套,认购率53%,均价64000元/㎡,累计去化率49%。
浦发东望于2023年11月首开,推出300套房源,均价62000元/㎡,认购率7%,目前累计去化6%。